• Время изготовления

    от 2 дней

Проектирование

Подготовка коммерческого предложения:
Выявление пожеланий к проектируемому объекту и обсуждения исходных данных;
Подготовка предварительного чертежа по замерам и эскизам заказчика;
Расчет параметров помещения;
Подбор материалов и оборудования с учетом параметров помещения и предпочтений заказчика;
Составление предварительной сметы;
Для нестандартных объектов возможно выполнение визуализации проекта (фотореалистичная отрисовка Вашей сауны или хаммама в 3D). Выполняется по договоренности с заказчиком;
Оформление коммерческого предложения.

Заключение договора на выполнение работ:
Окончательное согласование деталей по проекту и заключение договоров "На проектно-сметные работы"; После заключения договора, начинается детальная проработка проектной документации.

Проектно-сметные работы включают в себя:
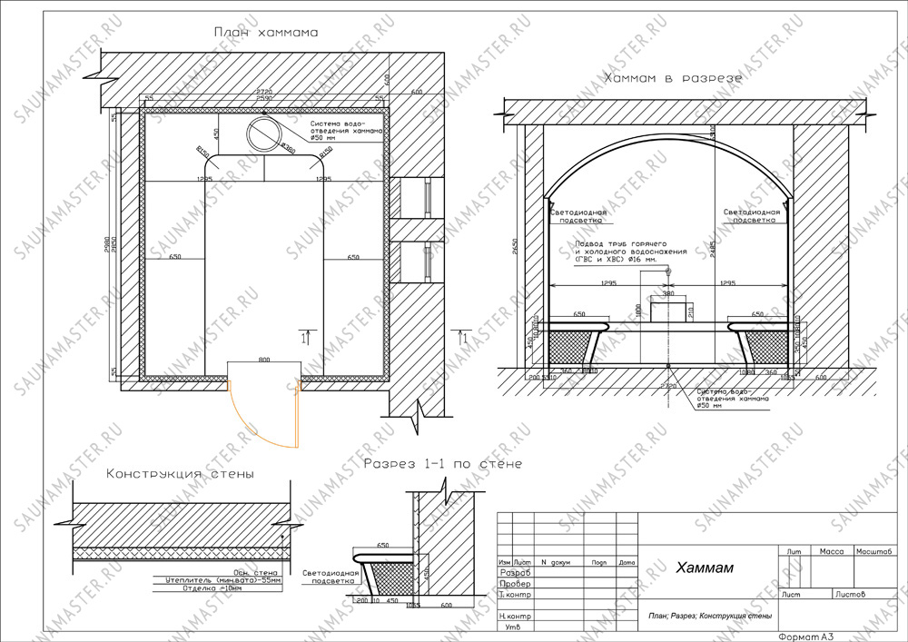
Подготовка детально проработанных рабочих чертежей проектируемого помещения;
При необходимости, наш специалист выезжает на объект строительства;
Разработка технического задания на подведение инженерных коммуникаций (электрика, сантехника, вентиляция);
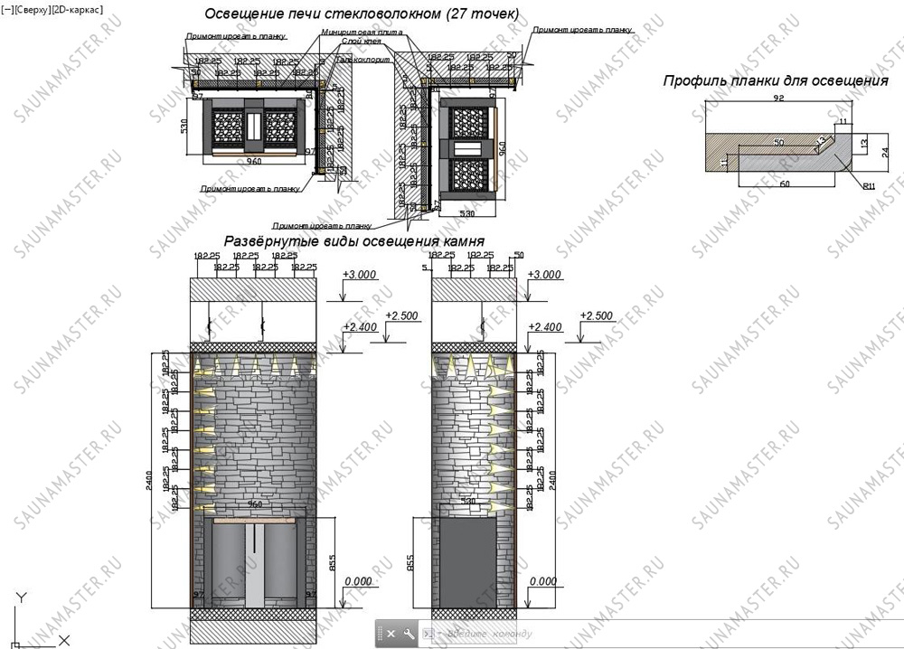
Создание 3D модели и визуализации с нескольких разных ракурсов;
Создание спецификации на материалы, оборудование;
Проработка эргономики помещений.

Вне зависимости от уровня сложности проекта, будь то многоэтажный SPA-комплекс или компактная сауна, мы с вниманием относимся к каждому заказчику. Подготовка проекта осуществляется грамотными специалистами с применением профессиональных систем проектирования и моделирования компании Autodesk . Заказывая проект сауны или хамама у нас, Вы получите полный комплекс качественно выполненных услуг.

Этапы работ

1

Заявка на сайте

2

Подготовка коммерческого предложения

3

Заключение договора на выполнение работ

4

Подписание акта приема-передачи

Свяжитесь с нами

Оставьте заявку на расчёт строительства, и мы предложим Вам оптимальное решение!

Этапы работ

1

Заявка на сайте

2

Бесплатный выезд на замер

3

Составление эскизного проекта

4

Согласование деталей и даты начала строительства

5

Подписание договора*

6

Завоз оборудования и материалов

7

Тестовый запуск оборудования

Открыть каталог компании

Преимущества

Строим с 2005 года

Опыт проектирования и строительства, широкая география: в России, СНГ и Европе

Более 528 объектов

За все время работы были сданы в эксплуатацию. Среди них как большие коммерческие СПА комплексы, так и компактные частные сауны

1223 объектов

Спроектировано. На самом деле, эта цифра даже больше: во время работы над проектом предоставляется несколько возможных вариантов

Гарантия качества

Мы работаем только с проверенными поставщиками. Оборудование и материалы из Европы, имеют все обязательные сертификаты

Комплектующие в наличии

Складская программа насчитывает более 1000 единиц продукции для строительства и оснащения объектов СПА премиум класса

Квалифицированные бригады

Наши специалисты регулярно проходят обучения у приглашенных европейских специалистов, совершенствуясь и приобретая полезные знания

Монтаж точно в срок

Все работы ведутся строго согласно графику. Предварительные работы осуществляются на производственных площадях компании.

3 дня

Со звонка или заявки до начала строительства. За это время мы подготовим рабочую документацию и подберем необходимые материалы.

Заказав строительство у нас, вы получите

1

Бесплатный выезд специалиста на объект

2

Эскизный проект в подарок

3

Комплект аксессуаров в подарок



* При подписании договора подряда мы вычтем стоимость выезда на замер и эскизного проекта из финальной стоимости заказа

Отзывы клиентов